Cette annonce a été supprimée

Stunning 5-Bed Loft in Paris 11ème

5 Chambres
5 SdBs
Surface habitable: 295 m²
Superficie du terrain: 80 m²

Living Space

Living Space

Entryway

Open Kitchen

Open Kitchen -Dining Area

Guest Bedroom

Guest Bath

Hallway

Studio Bed / Living Areas

Studio Bath

Studio Eat-In Kitchen

2nd floor Playroom

2nd Floor Girl's Bedroom

2nd floor Boy's Bedroom

Kid's Bathroom

2nd Floor Deck

Top floor Master Suite

Top floor Master Suite

Master Bath

Master Bath

Garden

Garden

Patio

Layout

Voir le carrousel

3 800 000 €

Enregistrer
Région: Paris Île-de-France Département: Paris (75) Commune: Paris 11ème Arrondissement (Popincourt) (75011)

À vendre entre particuliers (PAP)

Annonce de particulier Particulier
Localiser ce bien

Caractéristiques

  • Type de bien: Résidentiel (Appartement, Maison), Propriété Destiné À La Location
  • Chambres: 5
  • SdBs / salles de douche: 5
  • Surface habitable: 295 m²
  • Superficie du terrain: 80 m²

Caractéristiques

  • Jardin(s)
  • Maison(s) d'Amis / Annexe(s)
  • Stationnement Hors Rue
  • Terrasse(s)
  • avec Potentiel de Gîte

Description

Summary
EXCLUSIVE: The perfect Parisian loft, sleek decor, seclusion, private garden. Exposed beams, immense ceiling height, restored stone walls & numerous skylights make this a rare hidden gem in the trendy & lively 11th arrondissement. Behind the classic Haussmanien façade on the rue de la Folie Regnault, this 3-story, 5-bedroom loft has feel of a house and is a verdant oasis of calm in the vivacious French capital. The residence is completely renovated with contemporary and elegant features including a lush and landscaped private garden, floor to ceiling windows all equipped with remote-controlled inside blinds and outside shutters, maximum 24-hour security and full internal sound system. Central gas heating system and air conditioning throughout.

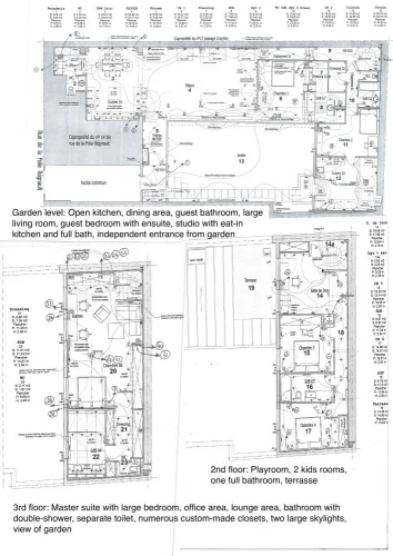
Ground floor: Through a private gate, we arrive in the 800 square foot landscaped garden with irrigation system. The front door to the house immediately to the left has an entrance with a closet and direct access to the patio. The main open space of the loft includes a fully-equipped open kitchen (Smeg, Gaggenau, Poggel Pohl, Siemens appliances), a dining area, pantry, guest powder room, a vast living room measuring 530 square feet with 45-foot high ceilings, skylights, and finally a large guest bedroom with 1.5 bath and generous closet space, all facing the garden with large sliding glass doors.

The ground floor also features access to a fully-independent studio, composed of a bedroom, living area, eat-in kitchen, full bath, separate toilet, and large closet. Perfect for a fille au pair, or visiting family, it has its own entrance via the garden ensuring privacy which give it the possibility as well of being rented out separately.

First floor: This is the children’s floor, with a playroom, two bedrooms facing the garden, full bathroom and a private outside deck.

2nd and top floor: The stunning master suite is composed of a vast bedroom with a lounge area, work space, numerous custom closets, a spacious bathroom with a double shower, double vanity and separate toilet. Bright and airy with 40-foot high ceilings, it has views onto the garden and 2 skylights.

Possibility to acquire:
Parking space, valued at €30K, price to be discussed.
Street-facing commercial unit, practical for stocking sports equipment, but also possible to rent out for commercial use, valued at €120K, price to be discussed.

Contact Malindi PENDER on +33 (0)6 77 79 11 52 for more information, extra photos and full brochure.

Location
Rue de la Folie Regnault

Les informations affichées sur cette annonce ont été fournies par un particulier. Ces informations ne constituent pas une description officielle du bien. Consultez notre avertissement complet.

3 800 000 €

Localisation

Paris (75), Paris Île-de-France
Région: Paris Île-de-France Département: Paris (75) Commune: Paris 11ème Arrondissement (Popincourt) (75011) Voir sur la carte

À vendre entre particuliers (PAP)

Annonce de particulier Particulier

Annonce ajoutée aux biens sauvegardés