House 420 m² to Renovate on a Plot of 1854m² with Countryside Views
Advert Reference: 202527les-5216
For Sale By Agent
Agency: Valérie LETAILLEUR
This property has been brought to you by Green-Acres

€249,000 is approximately: | |
British Pounds: | £211,650 |
US Dollars: | $266,430 |
Canadian Dollars: | C$366,030 |
Australian Dollars: | A$410,850 |






Key Info
- Type: Residential (House)
- Bedrooms: 3
- Habitable Size: 420 m²
- Land Size: 1,854 m²
Features
- Garden(s)
- Land
- Renovation / Development Potential
- Renovation Project
Property Description
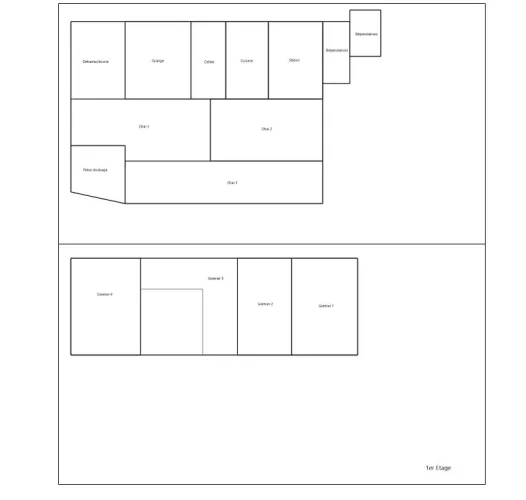
Located in the town of St Quentin de Baron in a rural environment with vineyards and on a dominant point, I offer you this beautiful stone house of 420 m2 on a magnificent plot of 1854m2.
You will immediately be seduced by the environment, the calm and the view. You will also appreciate the cul de sac location.
The land benefits from a large buildable part: 1607m2 in the Uc zone with 40% of the ground area.
The house has a built area of 420m2. It is completely to be renovated but benefit from magnificent stone walls in very good condition.
Part of the building is currently adjoining but can easily be separated from the neighbor's building.
The plot is serviced with a connection to the mains drainage.
I am at your disposal to present you this charming property that can allow you to carry out a beautiful project.
This ad is brought to you by Letailleur Valérie - Ei - NoRSAC: Registered at the Registry of the Commercial Court of Bordeaux - Ad written and published by an Agent -

€249,000 is approximately: | |
British Pounds: | £211,650 |
US Dollars: | $266,430 |
Canadian Dollars: | C$366,030 |
Australian Dollars: | A$410,850 |
Location Information
For Sale By Agent
Agency: Valérie LETAILLEUR
This property has been brought to you by Green-Acres
Property added to Saved Properties