Charming Villa with Sea View
3
Beds
1
Bath
Habitable Size:
103 m²
Land Size:
824 m²
Return to search
Currency Conversion
provided by
Wise
Please note that these conversions are approximate and for guidance only and do not constitute sale prices.
To find out more about currency exchange, please visit our Currency Exchange Guide.
Region: Provence-Alpes-Côte d'Azur
Department: Var (83)
Commune: Saint-Raphaël (83700)
Advert Reference: 0514
For Sale By Agent
Agency: Agence Miramar Patrimoine
This property has been brought to you by Green-Acres

€747,300 is approximately: | |
British Pounds: | £635,205 |
US Dollars: | $799,611 |
Canadian Dollars: | C$1,098,531 |
Australian Dollars: | A$1,233,045 |

































Key Info
Advert Reference: 0514
- Type: Residential (Villa, House) , Detached
- Bedrooms: 3
- Bath/ Shower Rooms: 1
- Habitable Size: 103 m²
- Land Size: 824 m²
Features
- Garden(s)
- Off-Street Parking
- Rental / Gîte Potential
- Swimming Pool
- Terrace(s) / Patio(s)
Property Description
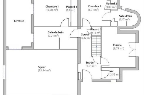
Under Pre-Contract : Le Trayas - Theoule-Sur-Mer: On a plot of 824 m², Provençal villa of 103 m² with sea view. South-East/North-West facing. The main level has an entrance hall, living room with fireplace, and a terrace overlooking the port of La Figueirette. Separate kitchen. Master bedroom with bathroom, shower, toilet. One single bedroom with shower, sink. Internal staircase leading to a third bedroom with loggia, shower room, toilet. Garage. Parking. Garden. Chorine Swimming pool. Very Quiet. Beautiful Residential Neighborhood. Opportunity. Works required.


Return to search
Currency Conversion
provided by
Wise
Please note that these conversions are approximate and for guidance only and do not constitute sale prices.
To find out more about currency exchange, please visit our Currency Exchange Guide.
Region: Provence-Alpes-Côte d'Azur
Department: Var (83)
Commune: Saint-Raphaël (83700)
View Large Map

€747,300 is approximately: | |
British Pounds: | £635,205 |
US Dollars: | $799,611 |
Canadian Dollars: | C$1,098,531 |
Australian Dollars: | A$1,233,045 |
Location Information
For Sale By Agent
Agency: Agence Miramar Patrimoine
This property has been brought to you by Green-Acres
Property added to Saved Properties