House for Sale 5 Room(s)
3
Beds
1
Bath
Habitable Size:
134 m²
Land Size:
902 m²
Return to search
Currency Conversion
provided by
Wise
Please note that these conversions are approximate and for guidance only and do not constitute sale prices.
To find out more about currency exchange, please visit our Currency Exchange Guide.
Region: Languedoc-Roussillon
Department: Gard (30)
Commune: Saint-Quentin-la-Poterie (30700)
Advert Reference: 668v799m
For Sale By Agent
Agency: Imov immo
This property has been brought to you by Green-Acres

€419,000 is approximately: | |
British Pounds: | £356,150 |
US Dollars: | $448,330 |
Canadian Dollars: | C$615,930 |
Australian Dollars: | A$691,350 |
















Key Info
Advert Reference: 668v799m
- Type: Residential (House)
- Bedrooms: 3
- Bath/ Shower Rooms: 1
- Habitable Size: 134 m²
- Land Size: 902 m²
Features
- Garden(s)
- Swimming Pool
- Terrace(s) / Patio(s)
Property Description
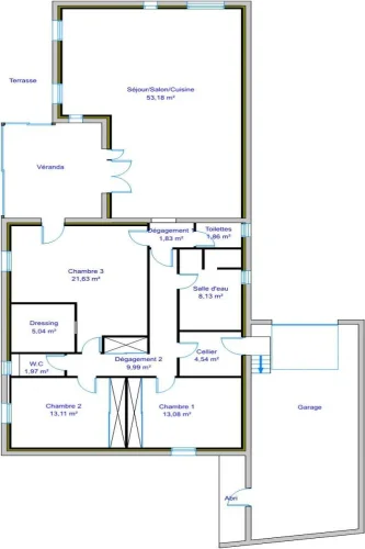
Saint Quentin La Poterie, within walking distance of shops, single-story villa from 2003, approx. 134 m² on a plot of approx. 900 m², not overlooked and without nuisance. Entrance via a 16 m² winter veranda, large living/dining room of 52 m² with a recently fitted kitchen. Three beautiful bedrooms, one of which is 22 m² with a 5 m² dressing room. Bathroom + shower, 2 toilets. Garage. 6X3 swimming pool with shelter. Drilling and automatic watering.


Return to search
Currency Conversion
provided by
Wise
Please note that these conversions are approximate and for guidance only and do not constitute sale prices.
To find out more about currency exchange, please visit our Currency Exchange Guide.
Region: Languedoc-Roussillon
Department: Gard (30)
Commune: Saint-Quentin-la-Poterie (30700)
View Large Map

€419,000 is approximately: | |
British Pounds: | £356,150 |
US Dollars: | $448,330 |
Canadian Dollars: | C$615,930 |
Australian Dollars: | A$691,350 |
Location Information
For Sale By Agent
Agency: Imov immo
This property has been brought to you by Green-Acres
Property added to Saved Properties