Rare on the Market: Renovated 441 sqm Family Property with Stone Outbuilding and 0.92-Acre Garden
Advert Reference: AT3-1911
For Sale By Agent
Agency: Agence Thom

€520,000 is approximately: | |
British Pounds: | £442,000 |
US Dollars: | $556,400 |
Canadian Dollars: | C$764,400 |
Australian Dollars: | A$858,000 |
Key Info
- Type: Residential (House)
- Bedrooms: 11
- Bath/ Shower Rooms: 7
- Habitable Size: 441 m²
- Land Size: 3,724 m²
Highlights
- Year of Construction: 1800
Features
- Air Conditioning
- Fireplace / Stove
- Garden(s)
- Outbuilding(s)
- Parking
- Renovated / Restored
- Stone
- Terrace(s) / Patio(s)
Property Description
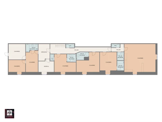
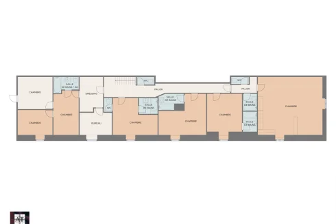
Located between Laval and Angers, in a quiet and leafy environment, this spacious family property offers 441 sqm of living space, combining modern comfort with authentic charm. Divided into two independent dwellings, it features generous, bright, and versatile spaces. The main home includes a large living room with a wood-burning insert, a roomy kitchen, two bedrooms, a shower room, WC, utility room, boiler room, and a bright winter garden that provides the only access to the upper floor. The second dwelling, which requires updating, offers a living room with fireplace, two bedrooms, a bathroom, WC, laundry room, and a kitchen currently used as a bedroom. The upper floor spans the entire property but is only accessible through the winter garden in the main dwelling. It includes seven spacious bedrooms, four of which have private en-suite bathrooms with toilets, a home office, dressing room, additional bathroom, two separate WCs, and a 60 sqm attic that can easily be converted. The 0.92-acre grounds feature a 30 sqm terrace, a carport, a garage, a garden shed, and a beautiful 135 sqm stone outbuilding, perfect for a workshop, additional accommodation, or storage. The property benefits from a heat pump heating system, compliant sanitation, and a privileged rural setting with open countryside views. A bright, spacious, and versatile property, ideal for a family home or tourism-based project. Energy efficiency: C, Emissions: A. The average amount of annual expenditure for a standard energy usage, established from energy prices in 2021, 2022 and 2023 : between €4800 and €6560. Information concerning the risks to which this property is exposed, are available on the Géorisques website: Price: €520,000 / Agency fees payable by the vendor. Virtual viewing available. In accordance with article L.561-5 of the money and finance code, a copy of the photo ID for all viewers will be required before any viewing. For more information about this property, please contact Axelle MARILLEAU on or To see our range of properties, please contact our bilingual team



€520,000 is approximately: | |
British Pounds: | £442,000 |
US Dollars: | $556,400 |
Canadian Dollars: | C$764,400 |
Australian Dollars: | A$858,000 |
Location Information
Property added to Saved Properties